设为首页
加入收藏
联系我们
首页
企业介绍
产品展示
新闻动态
企业风貌
留言板
联系我们
产品分类
球墨铸管
球墨铸铁管件
球墨铸铁井盖
阀门
排气阀
联系我们
公司名称:
青岛恒信球墨铸管销售有限公司
联系人:闫经理
手机:13954281976
电话:86-0532-85665643
传真:86-0532-85665643
网址:
http://
邮箱:qdxinshuiyuan@126.com
产品展示
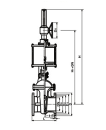
气动闸阀
详细信息
公称通经DN
主要外形尺寸和连接尺寸(mm)
WT(kg)
L
D
D1
D2
B
Z-ØD
H
H1
DO
CZ6s40H-16C CZ6s40H-16P CZ6s40H-16R
50
250
160
125
100
16
4-φ18
950
570
180
36
65
270
180
145
120
18
4-φ18
1050
596
180
53
80
280
195
160
135
20
8-φ18
1080
635
200
72
100
300
215
180
155
20
8-φ18
1145
645
250
90
125
325
245
210
185
22
8-φ18
1210
685
250
120
150
350
280
240
210
24
8-φ18
1300
720
320
132
200
400
355
295
265
26
12-φ23
1660
940
400
258
250
450
405
355
320
30
12-φ25
1790
1020
400
297
300
500
460
410
375
30
12-φ25
1990
1150
450
420
350
550
520
470
435
34
16-φ25
2090
1170
450
558
400
600
580
525
485
36
16-φ30
2290
1325
500
840
450
650
640
585
545
40
20-φ30
2485
1465
500
1110
500
700
705
650
608
44
20-φ34
2640
1590
550
1380
600
800
840
770
718
48
20-φ41
2940
1720
550
1620
700
900
910
840
788
50
24-φ41
3450
1960
600
1966
800
1000
1020
950
898
52
24-φ41
3650
2190
600
2282
900
1100
1120
1050
998
54
28-φ41
3815
2400
800
2495
1000
1200
1255
1170
1110
56
28-φ48
4000
2650
800
2760
公称通经DN
主要外形尺寸和连接尺寸(mm)
WT(kg)
L
D
D1
D2
B
Z-ØD
H
H1
DO
CZ6s40H-25C CZ6s40H-25P CZ6s40H-25R
50
250
160
125
100
20
4-φ18
950
570
180
38
65
270
180
145
120
22
8-φ18
1050
596
180
55
80
280
195
160
135
22
8-φ18
1080
635
200
76
100
300
230
190
160
24
8-φ23
1145
645
250
94
125
325
270
220
188
28
8-φ25
1210
685
250
126
150
350
300
250
218
30
8-φ25
1300
720
320
136
200
400
360
320
278
34
12-φ25
1660
940
400
265
250
450
425
370
332
36
12-φ30
1790
1020
400
300
300
500
485
430
390
50
16-φ30
1990
1150
450
436
350
550
550
490
448
44
16-φ34
2090
1170
450
580
400
600
610
550
505
48
16-φ34
2290
1325
500
860
450
650
660
600
555
50
20-φ34
2485
1465
500
1260
500
700
730
660
610
52
20-φ41
2640
1590
550
1420
600
800
840
770
718
56
20-φ41
2940
1720
550
1710
700
900
955
875
815
60
24-φ48
3450
1960
600
2105
800
1000
1070
990
930
64
24-φ48
3650
2190
600
2310
900
1100
1180
1090
1025
66
28-φ54
3815
2400
800
2620
1000
1200
1305
1210
1140
68
28-φ58
4000
2650
800
2960
公称通经DN
主要外形尺寸和连接尺寸(mm)
WT(kg)
L
D
D1
D2
D6
B
Z-D
H
H1
DO
CZ6s40H-40 CZ6s40H-40P CZ6s40H-40R
50
250
160
125
100
88
20
4-φ18
950
570
200
42
65
280
180
145
120
110
22
8-φ18
1050
596
200
68
80
320
195
160
135
121
22
8-φ18
1080
635
250
84
100
350
230
190
160
150
24
8-φ23
1145
645
320
102
125
400
270
220
188
176
28
8-φ25
1210
685
320
135
150
450
300
250
218
204
30
8-φ25
1300
720
400
156
200
550
375
320
282
260
38
12-φ30
1660
940
400
276
250
650
445
385
345
313
42
12-φ34
1790
1020
450
306
300
750
510
450
408
364
46
16-φ34
1990
1150
450
510
350
850
570
510
465
422
52
16-φ34
2090
1170
500
720
400
950
655
585
535
474
58
16-φ41
2290
1325
550
1050
450
1050
680
610
560
524
60
20-φ41
2485
1465
550
1320
500
1150
755
670
612
576
62
20-φ48
2640
1590
550
1800
600
1350
890
795
730
678
62
20-φ54
2940
1720
600
2160
版权所有:青岛恒信球墨铸管销售有限公司 Copyrite ,All Rights Reserved. 技术支持:
普通网
网站管理
联系我们
|
加入收藏
|
打印此页